Jean GOMES

Immeuble industriel - à vendre - 66400 Céret 393 000 € - 6809

Immeuble industriel - À vendre - 66400 Céret
4 250 m² 1

Description

Local d’activité avec bureaux et stationnement – 249 m² + mezzanine 70 m² – Céret (66400)

Situé dans la zone d’activité TECH-OULRICH à Céret, ce local construit en 2009 offre un espace fonctionnel adapté à de nombreuses activités artisanales, industrielles légères ou de stockage.

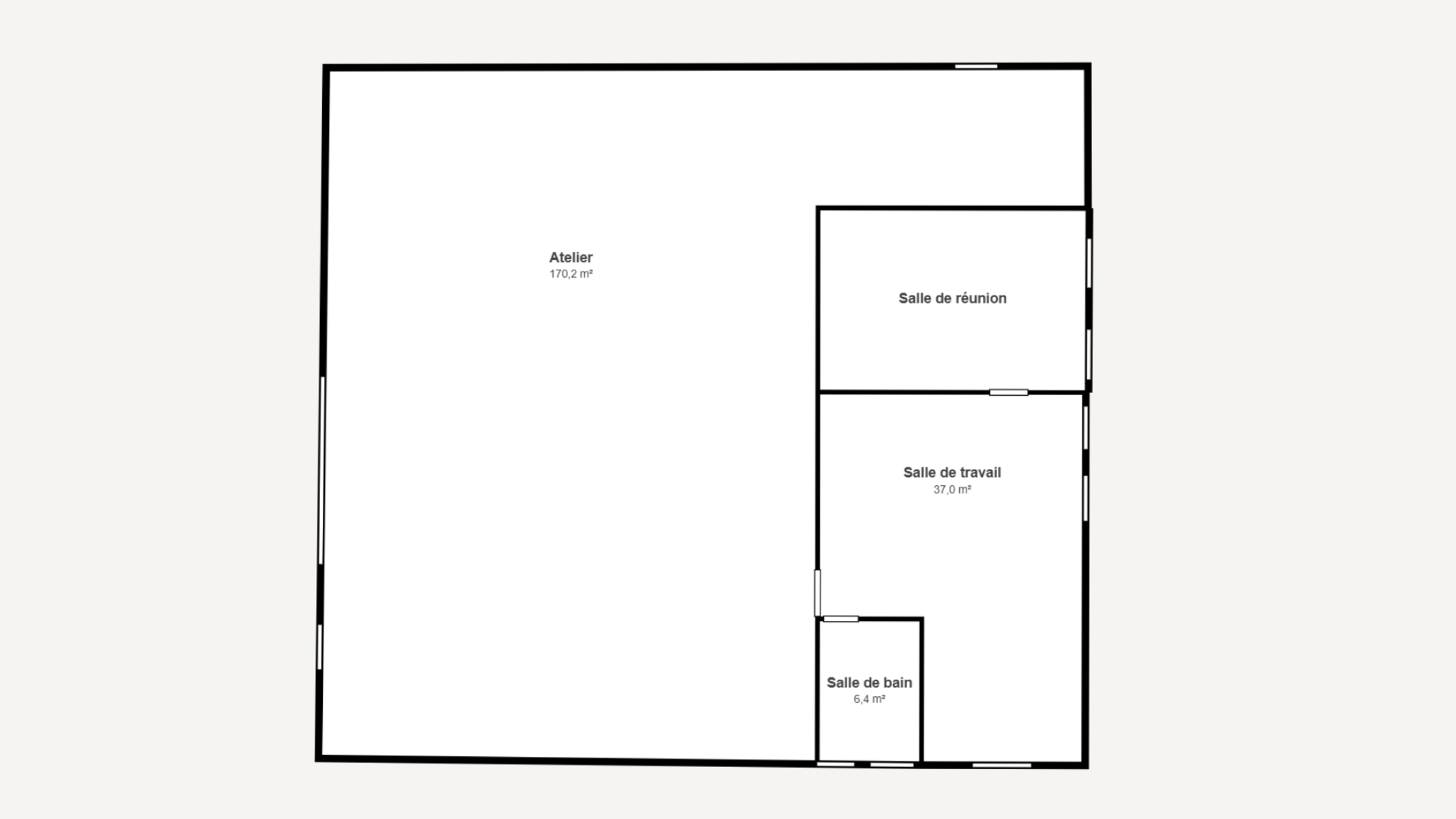
DESCRIPTION DU BIEN :

- Surface totale : 250 m² de plain-pied : atelier / entrepôt (170 m²) + bureau et salle de réunion climatisée (60 m²) + sanitaires (salle de bain avec toilettes)
- Mezzanine de 70 m² offrant un espace de stockage supplémentaire
- Porte sectionnelle motorisée (4 m de largeur, 3,6 m de hauteur utile) + porte piétonne indépendante
- Hauteur sous plafond : jusqu’à 6 m
- Dalle béton

TERRAIN & EXTERIEURS

- Parcelle de 1 050 m² entièrement clôturée avec portail automatisé
- Cour stabilisée permettant le stationnement de plus de 10 véhicules
- Accès poids lourds et aire de manœuvre adaptée

EQUIPEMENTS

- Électricité triphasée
- Ventilation / extraction
- Conformité électrique
- Bureau climatisé

LOCALISATION

- Zone d’activité dynamique Tech-Oulrich (66400 Céret)
- Accès rapide aux grands axes routiers et autoroute
- Environnement professionnel diversifié

USAGES POSSIBLES

- Atelier mécanique (usage actuel)
- Activité artisanale (menuiserie, serrurerie, etc.)
- Local de stockage ou entrepôt
- Espace mixte : bureaux + atelier

PLUS D'INFORMATIONS

Pour recevoir le dossier complet et convenir d’une visite privée, contactez votre conseiller Jean Gomes au 07**49**50**11**33.
Une visite à distance est également disponible afin de découvrir le potentiel de ce bien avant un déplacement sur place

Jean GOMES - RSAC 835.104.340 - OPTIMO [ by KW ]

Performance Energétique

logement très performant
A
B
129kWh/m².an consommation
(énergie primaire)
4*kg Co2 /m².an émissions
(gaz à effet de serre)
C
D
E
passoire
énergétique
F
G
logement extrèmement peu performant
* Dont émissions de gaz
à effet de serre
peu d'émissions de CO2
A
4 kg Co2 /m².an
B
C
D
E
F
G
émissions de CO2 très importantes

Informations complémentaires

Honoraires à charge du vendeur.

Nos honoraires

Les informations sur les risques auxquels ce bien est exposé sont disponibles sur le site Géorisques: www.georisques.gouv.fr

Général

Référence 6809
Référence 7065487
Catégorie Immeuble industriel
Garage Oui
Parking Oui
Surface habitable 250 m²
Surface du terrain 1052 m²
Disponibilité immédiatement

Bâtiment

Année de construction 2009
Nombre de garage 1
Parking extérieur Oui

Equipements de base

Accès PMR Oui
Cuisine Oui
Climatisation Oui
WC (nombre) 1
Toilettes H/F Oui
Nombre de bureaux généraux 1
Double vitrage Oui
Nombre de salle de meeting 1
Pièces (nombre) 4

En chiffres

Atelier (surface) 170 m²
Bureaux (surface) 59 m²
Surface (Loi Carrez) 234 m²

Certificats énergétique

Classe DPE C
DPE (Kwh/m²/an) 129
Émission GES (émission CO2) 4
Classe GES (classe de CO2) A
Bien non soumis au DPE Oui
Date de réalisation du DPE 25/09/2025

Informations contractuelles

Type d'honoraire Honoraires à la charge du vendeur
Numéro de mandat 6809
Prendre contact pour le bien : 7065487

* Champs obligatoires

Biens similaires

Préférences pour les cookies

La protection de vos données personnelles est importante pour nous. C’est pourquoi nous détaillons ci-dessous les différents services et fonctionnalités du site qui utilisent des cookies et nous vous laissons décider des cookies que vous souhaitez autoriser ou refuser.

Veuillez cependant noter que si vous bloquez certains types de cookies, cela pourrait impacter votre expérience de navigation sur notre site ainsi que les fonctionnalités disponibles.

Nous utilisons des cookies fonctionnels obligatoires pour assurer le bon fonctionnement du site. Ils sont, par exemple, nécessaires pour retrouver le résultat d’une recherche ou enregistrer le choix de la langue.

Certaines fonctionnalités, comme l’affichage de vidéos ou de cartes géographiques, sont assurées via des composants externes développés par des partenaires comme YouTube ou Google. Certains composants utilisent des cookies qui sont susceptibles de permettre à ces tiers de suivre le comportement des internautes afin, par exemple, de réaliser du ciblage publicitaire. L’activation de ces fonctionnalités et des cookies associés est donc soumis à votre consentement.