Jean GOMES

Garage (ferme) - à vendre - 66400 Céret 393 000 € - 6809-2

Garage (ferme) - À vendre - 66400 Céret
250 m² 10

Description

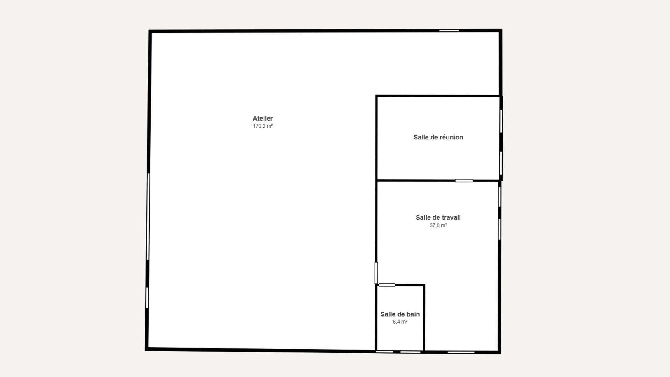
Situé dans la zone d’activité TECH-OULRICH à Céret, ce local construit en 2009 offre un espace fonctionnel adapté à de nombreuses activités artisanales, industrielles légères ou de stockage. DESCRIPTION DU BIEN : - Surface totale : 250 m² de plain-pied : atelier / entrepôt (170 m²) + bureau et salle de réunion climatisée (60 m²) + sanitaires (salle de bain avec toilettes) - Mezzanine de 70 m² offrant un espace de stockage supplémentaire - Porte sectionnelle motorisée (4 m de largeur, 3,6 m de hauteur utile) + porte piétonne indépendante - Hauteur sous plafond : jusqu’à 6 m - Dalle béton TERRAIN & EXTERIEURS - Parcelle de 1 050 m² entièrement clôturée avec portail automatisé - Cour stabilisée permettant le stationnement de plus de 10 véhicules - Accès poids lourds et aire de manœuvre adaptée EQUIPEMENTS - Électricité triphasée - Ventilation / extraction - Conformité électrique - Bureau climatisé LOCALISATION - Zone d’activité dynamique Tech-Oulrich (66400 Céret) - Accès rapide aux grands axes routiers et autoroute - Environnement professionnel diversifié USAGES POSSIBLES - Atelier mécanique (usage actuel) - Activité artisanale (menuiserie, serrurerie, etc.) - Local de stockage ou entrepôt - Espace mixte : bureaux + atelier

Performance Energétique

DPE vierge
logement très performant
A
B
C
D
E
passoire
énergétique
F
G
logement extrèmement peu performant
DPE vierge
* Dont émissions de gaz
à effet de serre
peu d'émissions de CO2
A
B
C
D
E
F
G
émissions de CO2 très importantes

Informations complémentaires

Honoraires à charge du vendeur.

Nos honoraires

Les informations sur les risques auxquels ce bien est exposé sont disponibles sur le site Géorisques: www.georisques.gouv.fr

Général

Référence 6809-2
Référence 7227075
Catégorie Garage (ferme)
Garage Oui
Surface 250 m²

Bâtiment

Année de construction 2009

Principales caractéristiques

Parking extérieur Oui
Nombre de parking extérieur 10

Sécurité

Volets Oui
Alarme Oui

Informations contractuelles

Type d'honoraire Honoraires à la charge du vendeur
Numéro de mandat 6809-2

Visites

Point de rendez-vous pour la visite en ligne (détails) Sur place
Prendre contact pour le bien : 7227075

* Champs obligatoires

Biens similaires

Préférences pour les cookies

La protection de vos données personnelles est importante pour nous. C’est pourquoi nous détaillons ci-dessous les différents services et fonctionnalités du site qui utilisent des cookies et nous vous laissons décider des cookies que vous souhaitez autoriser ou refuser.

Veuillez cependant noter que si vous bloquez certains types de cookies, cela pourrait impacter votre expérience de navigation sur notre site ainsi que les fonctionnalités disponibles.

Nous utilisons des cookies fonctionnels obligatoires pour assurer le bon fonctionnement du site. Ils sont, par exemple, nécessaires pour retrouver le résultat d’une recherche ou enregistrer le choix de la langue.

Certaines fonctionnalités, comme l’affichage de vidéos ou de cartes géographiques, sont assurées via des composants externes développés par des partenaires comme YouTube ou Google. Certains composants utilisent des cookies qui sont susceptibles de permettre à ces tiers de suivre le comportement des internautes afin, par exemple, de réaliser du ciblage publicitaire. L’activation de ces fonctionnalités et des cookies associés est donc soumis à votre consentement.